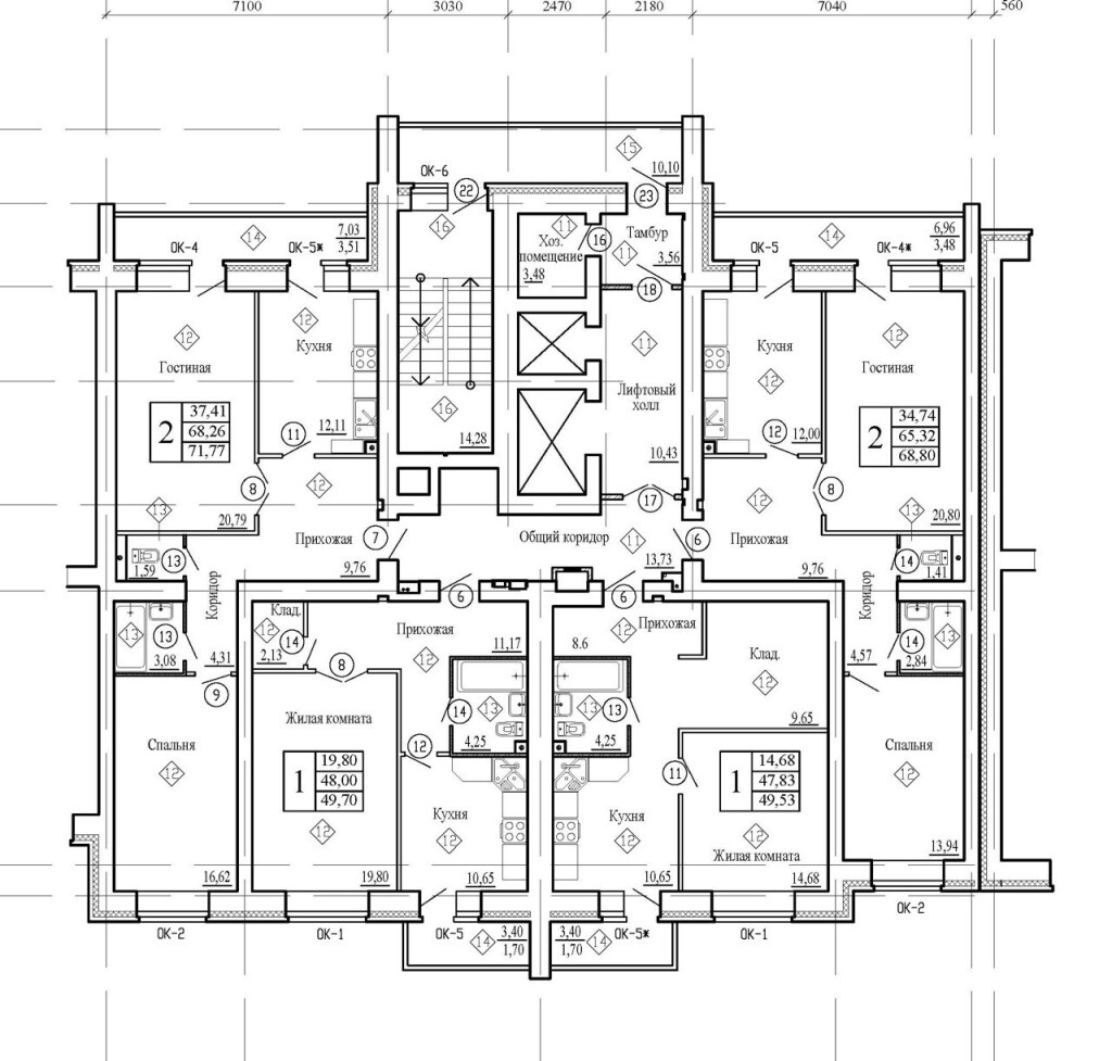
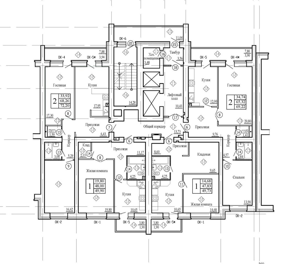
2-Комнатная квартира 71.22м², эт. 13, id: 742564
ЖК «ЗЕЛЕНАЯ ДОЛИНА» - это небольшой микрорайон, расположенный в Коминтерновском районе г. Воронеж по адресу: пер. Здоровья, 90, 90В, 90Г. Корпуса представляют собой многосекционные добротные кирпичные жилые дома от 14 до 16 этажей в высоту, строительство которых ведется в несколько очередей.
Район прекрасный. Рядом магазины: Центрторг, Магнит, Пятёрочка.
В 100 метрах вход в парк Динамо, свежий воздух, необыкновенный запах после дождя. До остановки минут 10 пешком.
Во дворе хорошая детская площадка: есть качели, песочница, скамеечки, комплекс снарядов. С верхних этажей дома прекрасный вид. Хорошая управляющая компания.
Детский сад в процессе строительства.
Квартиры сдаются с предчистовой отделкой. В каждой квартире устанавливаются современные биметаллические радиаторы, окна ПВХ, входная дверь.
- Год постройки 2024
- Наличие обременений Нет
- Материал перекрытий Ж/б плиты
- Способы оплаты Ипотека; 100% оплата
- Продажа по договору ДДУ
- Тип собственника Застройщик
- Количество подъездов 6
- Срок сдачи 2024-09-30
- Материал постройки Кирпичный
- Парковка Наземная
- Лифты Пассажирский; Грузовой
- Тип сделки продажа
- Комнатность 2
- Окна выходят На улицу
- Балконы 2
- Отопление Центральное
- Количество раздельных санузлов 1
- Ремонт Без отделки
- Площадь кухни 13.43
общая площадь, м2
жилая площадь, м2
этаж из 16
