Дом 155.90м², жил. пл: 155.9 м2
общая площадь, м2
жилая площадь, м2
Уютный дом в продаже! Идеальный выбор для тех, кто ценит комфорт и удобство.
Площадь дома 155,9 м. кв., участок 8,12 сотки, что создает прекрасное пространство для жизни и отдыха.
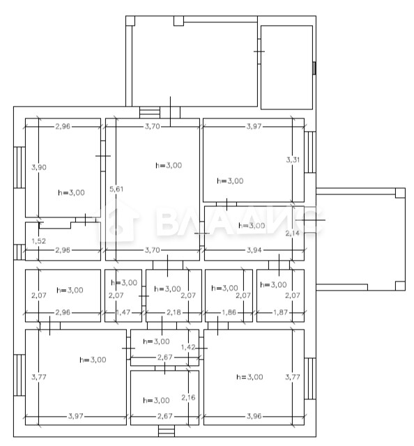
У дома удобная планировка:
- кухня 11,5 м2 с котельной 4,2 м2 и гостиная 20,8 м2 (общее пространство 36,5 м2)
- три спальни:
1) 13,1 м2,
2) 14,9 м2 + гардеробная 3,9 м2,
3) 15 м2 + гардеробная 6,1 м2;
- два санузла 3 м2, и 5,8 м2;
- коридоры 4,5 м2, и холл 8,4 м2 с гардеробной 3,9 м2;
- терраса 16,6 м2, с хоз. блоком 6,7 м2.
Предчистовая отделка, есть все необходимые коммуникации - электрика, газ, центральный водопровод и канализация. Идеальный выбор для тех, кто ценит уют в своём доме.
Приезжайте посмотреть!
- Год постройки 2024
- Наличие обременений Нет
- Тип продажи Свободная
- Лет в собственности Меньше трех
- Материал кровли Металлочерепица
- Материал перекрытий Деревянные
- Онлайн показ Возможен
- Количество собственников 1
- Перепланировка Нет
- Продажа по договору ДКП
- Тип собственника Частное лицо
- Статус участка Индивидуальное жилищное строительство
- Коммуникации участка Электричество; Водоснабжение; Газ; Канализация
- Площадь участка, сот. 8.12
- Благоустройство участка Охрана
- Водоснабжение Центральное
- Подходит для круглогодичного проживания Да
- Тип здания Дом
- Материал постройки Газобетонный блок
- Тип сделки продажа
- Основание собственности Купля/продажа
- Комнатность 3
- Расположение санузла В доме
- Площадь комнат 15+14,9+13,1
- Балконы 1
- Лоджии 1
- Отопление Индивидуальный котел
- Количество раздельных санузлов 1
- Количество совмещенных санузлов 1
- Высота потолков, м 3.00
- Ремонт White box
- Площадь кухни 11.5
общая площадь, м2
жилая площадь, м2
