Дом 158.90м², жил. пл: 158.9 м2
общая площадь, м2
жилая площадь, м2
Продается уютный дом в живописном месте, расположенный на участке площадью 12 соток. Этот дом идеально подходит для тех, кто ищет комфорт и близость к природе.
Основные характеристики:
- Площадь участка: 12 соток, обеспечивающий простор для отдыха и занятий спортом.
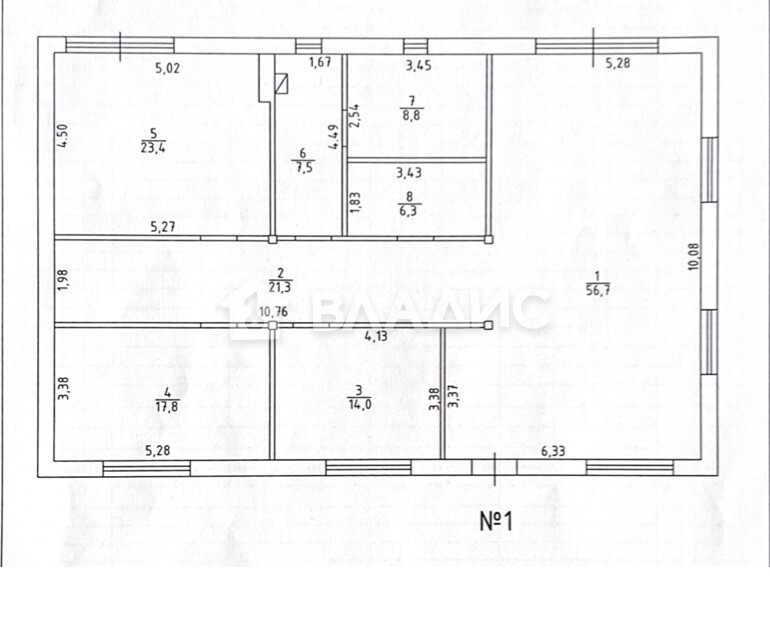
- Комнаты: Три уютные комнаты и кухня-гостиная, созданные для комфортного проживания.
- Санузлы: Два санузла для удобства жителей.
- Котельная: Обеспечивает надежное отопление и комфортный микроклимат в доме.
- Качество постройки: Дом построен из качественных материалов, что гарантирует его надежность и
долговечность.
Преимущества:
- Экологически чистый район: Дом находится вдали от городской суеты, всего в 100 метрах от леса — идеальное
место для прогулок на свежем воздухе.
- Территория: Во дворе много места для отдыха и занятий спортом, что подойдет как для семьи с детьми, так и
для активных людей.
- Инфраструктура: В посёлке есть большая детская площадка, а хорошие соседи создают комфортную атмосферу
для жизни.
Этот дом станет идеальным вариантом для тех, кто ищет спокойное и уютное место для жизни вдали от шума и стресса городских условий.
Более подробная информация по телефону.
- Год постройки 2021
- Наличие обременений Нет
- Тип продажи Свободная
- Лет в собственности От трех до пяти
- Материал кровли Металлочерепица
- Материал перекрытий Ж/б плиты
- Онлайн показ Возможен
- Количество собственников 1
- Перепланировка Нет
- Продажа по договору ДКП
- Тип собственника Частное лицо
- Статус участка Индивидуальное жилищное строительство
- Коммуникации участка Электричество; Канализация; Водоснабжение
- Площадь участка, сот. 12
- Благоустройство участка Нет
- Водоснабжение Центральное
- Подходит для круглогодичного проживания Да
- Тип здания Дом
- Материал постройки Кирпичный
- Тип сделки продажа
- Основание собственности Строительство
- Комнатность 3
- Расположение санузла В доме
- Площадь комнат 23,4+17,8+14
- Отопление Индивидуальный котел
- Количество совмещенных санузлов 2
- Высота потолков, м 3.00
- Ремонт White box
- Площадь кухни 56.7
общая площадь, м2
жилая площадь, м2
