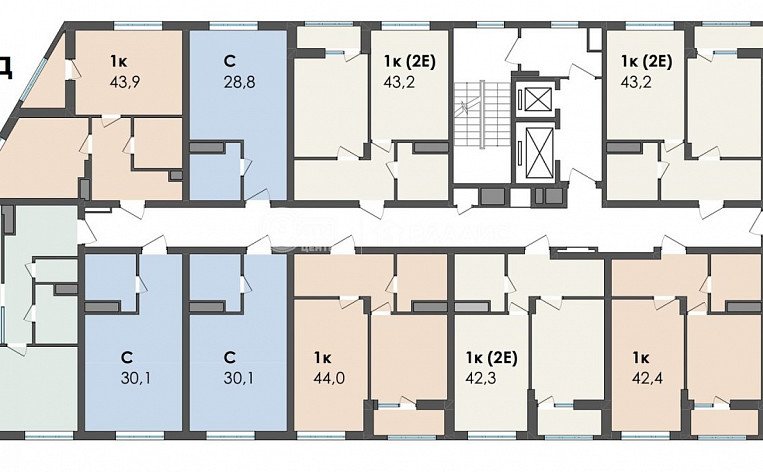
2-комнатная квартира, 62.6 м2, эт. 2, id: 825348
городской округ Воронеж, Воронеж, Железнодорожный район, бульвар Содружества, 1
На карте
10 556 601 ₽
168 636 ₽/м2
62.6
общая площадь, м2
25.2
жилая площадь, м2
2
этаж из 12
Ваша сделка застрахована
Полное сопровождение сделки
Решаем юр. вопросы
Помощь в оформлении ипотеки
Ответим на ваши вопросы
Описание
Описание
Код объекта: 794217.
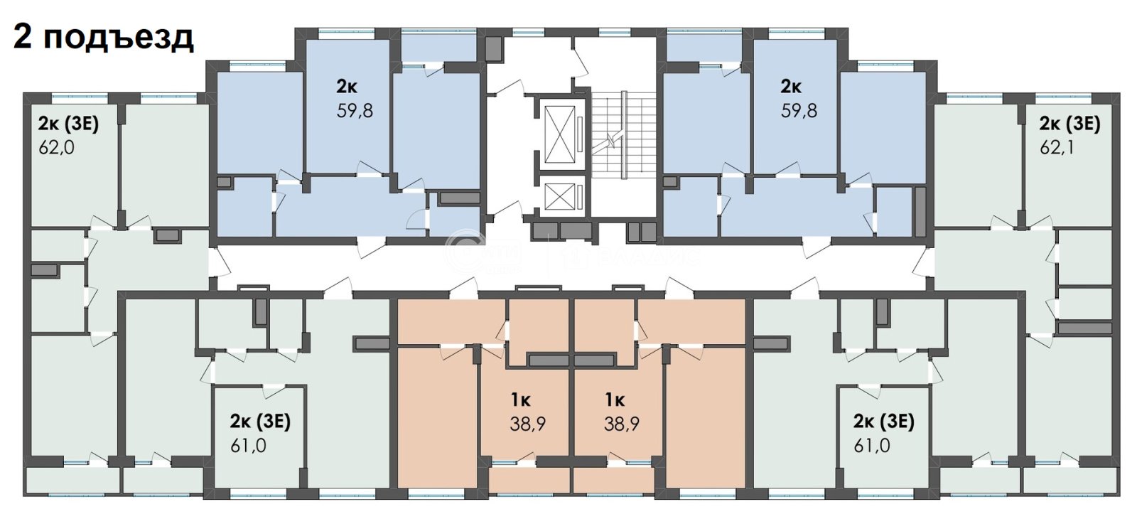
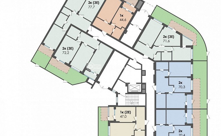
ЖК Джаз – умный жилой дом в первом цифровом квартиле Воронежа!
Монолитно-кирпичный красивый комплекс недалеко от Остужевской развязки по адресу Бульвар Содружества, 1. Дома в ЖК переменной этажности от 9 до 12 этажей, спроектированы и располагаются так, чтобы из окон открывался хороший вид, и попадало достаточно света. На самом деле там раскинется настоящий микрорайон, да какой! В квартале будет реализована экоконцепция «зеленый город в городе». В пешей доступности расположатся не только необходимые социальные, досуговые и спортивные учреждения, но и зоны отдыха, зеленые аллеи, сеть веломаршрутов и природный лесопарк! ЖК обещает стать, наверное, лучшим выбором для семей с детьми по благоустройству, локации, экологичности, квартирографии и инфраструктуре:
- 15 минут до центра и 3 минуты до лесопарка
- главные социальные учреждения, магазины, банки, аптеки в пешей доступности
- школа ( вторая по размерам в городе) на 1500 мест
- детский сад
- поликлиника на 300 посещений в сутки
- паркинги, в том числе многоуровневые
- комфортные подъезды к жилому комплексу со всех сторон
- дворы без машин
- разнообразнейшее озеленение придомовой территории
- ландшафтное экооборудование
- детские зоны для игр
- активные мультиспортивные площадки
- прогулочные променады
- велодорожки
- зона для физических упражнений под крышей, пользоваться которой можно будет круглогодично и в любую погоду
- умные счетчики воды, тепла и света
- высокий класс энергоэффективности дома (В+)
- увеличенные энергосберегающие окна с повышенной звукоизоляцией
- поквартирная регулировка и учет тепла
Отделка предчистовая.
Нам кажется, этот ЖК идеально подходит именно для молодых динамичных семей. Жители ЖК смогут управлять своим домом через мобильное приложение со смартфона: просматривать видеокамеры, управлять доступами в дом-двор-парковку, подавать заявки в УК, оплачивать счета в один клик, получать дополнительные услуги (клининг, ремонт и т.д.) через встроенный маркетплейс.
Мы готовы предлагать вам квартиры в этом продвинутом жилом комплексе. Честно говоря, нам самим хочется там жить! Звоните : покажем, расскажем, забронируем!
Срок сдачи 2025 г.
ЖК Джаз – умный жилой дом в первом цифровом квартиле Воронежа!
Монолитно-кирпичный красивый комплекс недалеко от Остужевской развязки по адресу Бульвар Содружества, 1. Дома в ЖК переменной этажности от 9 до 12 этажей, спроектированы и располагаются так, чтобы из окон открывался хороший вид, и попадало достаточно света. На самом деле там раскинется настоящий микрорайон, да какой! В квартале будет реализована экоконцепция «зеленый город в городе». В пешей доступности расположатся не только необходимые социальные, досуговые и спортивные учреждения, но и зоны отдыха, зеленые аллеи, сеть веломаршрутов и природный лесопарк! ЖК обещает стать, наверное, лучшим выбором для семей с детьми по благоустройству, локации, экологичности, квартирографии и инфраструктуре:
- 15 минут до центра и 3 минуты до лесопарка
- главные социальные учреждения, магазины, банки, аптеки в пешей доступности
- школа ( вторая по размерам в городе) на 1500 мест
- детский сад
- поликлиника на 300 посещений в сутки
- паркинги, в том числе многоуровневые
- комфортные подъезды к жилому комплексу со всех сторон
- дворы без машин
- разнообразнейшее озеленение придомовой территории
- ландшафтное экооборудование
- детские зоны для игр
- активные мультиспортивные площадки
- прогулочные променады
- велодорожки
- зона для физических упражнений под крышей, пользоваться которой можно будет круглогодично и в любую погоду
- умные счетчики воды, тепла и света
- высокий класс энергоэффективности дома (В+)
- увеличенные энергосберегающие окна с повышенной звукоизоляцией
- поквартирная регулировка и учет тепла
Отделка предчистовая.
Нам кажется, этот ЖК идеально подходит именно для молодых динамичных семей. Жители ЖК смогут управлять своим домом через мобильное приложение со смартфона: просматривать видеокамеры, управлять доступами в дом-двор-парковку, подавать заявки в УК, оплачивать счета в один клик, получать дополнительные услуги (клининг, ремонт и т.д.) через встроенный маркетплейс.
Мы готовы предлагать вам квартиры в этом продвинутом жилом комплексе. Честно говоря, нам самим хочется там жить! Звоните : покажем, расскажем, забронируем!
Срок сдачи 2025 г.
Общая информация
- Год сдачи 2025
- Тип здания Монолит
- Район городской округ Воронеж
Внутреннее пространство
- Отделка White box
- Санузел 2
- Лифт 1
- Балкон 1 лоджия
- Площадь жилья 25.2
- Площадь кухни 16.5
- Ремонт White box
Спросите у агента
На карте
10 556 601 ₽
168 636 ₽/м2
62.6
общая площадь, м2
25.2
жилая площадь, м2
2
этаж из 12
Ваша сделка застрахована
Полное сопровождение сделки
Решаем юр. вопросы
Помощь в оформлении ипотеки
Ответим на ваши вопросы
Хотите продать похожую квартиру?
Оставьте свои контактные данные, и наш специалист свяжется с вами в
ближайшее время.
Ваша заявка принята!
При покупке недвижимости, торг - это дело уместное. Предложите свою
цену, и мы свяжемся с вами.
Ваша заявка принята!
Похожие объекты
1-комнатная квартира, 48.7 м2
5 844 000 ₽
1 /17 эт.
городской округ Воронеж, Воронеж, Центральный район,
улица Берёзовая Роща, 4А
2-комнатная квартира, 69.3 м2
7 276 500 ₽
1 /17 эт.
городской округ Воронеж, Воронеж, Центральный район,
улица Берёзовая Роща, 4А
2-комнатная квартира, 69.3 м2
7 276 500 ₽
1 /17 эт.
городской округ Воронеж, Воронеж, Центральный район,
улица Берёзовая Роща, 4А
2-комнатная квартира, 75.7 м2
7 948 500 ₽
1 /17 эт.
городской округ Воронеж, Воронеж, Центральный район,
улица Берёзовая Роща, 4А
1-комнатная квартира, 49.3 м2
5 916 000 ₽
1 /17 эт.
городской округ Воронеж, Воронеж, Центральный район,
улица Берёзовая Роща, 4А
2-комнатная квартира, 75.7 м2
7 948 500 ₽
1 /17 эт.
городской округ Воронеж, Воронеж, Центральный район,
улица Берёзовая Роща, 4А
2-комнатная квартира, 65.86 м2
9 082 094 ₽
2 /21 эт.
городской округ Воронеж, Воронеж, Левобережный район,
улица Гаршина, 25
2-комнатная квартира, 73.93 м2
10 084 052 ₽
2 /21 эт.
городской округ Воронеж, Воронеж, Левобережный район,
улица Гаршина, 25
2-комнатная квартира, 65.86 м2
9 095 266 ₽
2 /21 эт.
городской округ Воронеж, Воронеж, Левобережный район,
квартал Придача
3-комнатная квартира, 65.87 м2
8 447 827 ₽
3 /21 эт.
городской округ Воронеж, Воронеж, Левобережный район,
улица Гаршина, 25
1-комнатная квартира, 48.7 м2
5 844 000 ₽
1 /17 эт.
городской округ Воронеж, Воронеж, Центральный район,
улица Берёзовая Роща, 4А
2-комнатная квартира, 69.3 м2
7 276 500 ₽
1 /17 эт.
городской округ Воронеж, Воронеж, Центральный район,
улица Берёзовая Роща, 4А
2-комнатная квартира, 69.3 м2
7 276 500 ₽
1 /17 эт.
городской округ Воронеж, Воронеж, Центральный район,
улица Берёзовая Роща, 4А
2-комнатная квартира, 75.7 м2
7 948 500 ₽
1 /17 эт.
городской округ Воронеж, Воронеж, Центральный район,
улица Берёзовая Роща, 4А
1-комнатная квартира, 49.3 м2
5 916 000 ₽
1 /17 эт.
городской округ Воронеж, Воронеж, Центральный район,
улица Берёзовая Роща, 4А
1-комнатная квартира, 41.5 м2
4 980 000 ₽
1 /17 эт.
городской округ Воронеж, Воронеж, Центральный район,
улица Берёзовая Роща, 4А
2-комнатная квартира, 75.7 м2
7 948 500 ₽
1 /17 эт.
городской округ Воронеж, Воронеж, Центральный район,
улица Берёзовая Роща, 4А
2-комнатная квартира, 51.1 м2
4 644 990 ₽
16 /19 эт.
городской округ Воронеж, Воронеж, Советский район,
улица Теплоэнергетиков, 15
2-комнатная квартира, 65.86 м2
9 082 094 ₽
2 /21 эт.
городской округ Воронеж, Воронеж, Левобережный район,
улица Гаршина, 25
2-комнатная квартира, 73.93 м2
10 084 052 ₽
2 /21 эт.
городской округ Воронеж, Воронеж, Левобережный район,
улица Гаршина, 25
1-комнатная квартира, 48.7 м2
5 844 000 ₽
1 /17 эт.
городской округ Воронеж, Воронеж, Центральный район,
улица Берёзовая Роща, 4А
2-комнатная квартира, 69.3 м2
7 276 500 ₽
1 /17 эт.
городской округ Воронеж, Воронеж, Центральный район,
улица Берёзовая Роща, 4А
2-комнатная квартира, 69.3 м2
7 276 500 ₽
1 /17 эт.
городской округ Воронеж, Воронеж, Центральный район,
улица Берёзовая Роща, 4А
2-комнатная квартира, 75.7 м2
7 948 500 ₽
1 /17 эт.
городской округ Воронеж, Воронеж, Центральный район,
улица Берёзовая Роща, 4А
1-комнатная квартира, 49.3 м2
5 916 000 ₽
1 /17 эт.
городской округ Воронеж, Воронеж, Центральный район,
улица Берёзовая Роща, 4А
2-комнатная квартира, 75.7 м2
7 948 500 ₽
1 /17 эт.
городской округ Воронеж, Воронеж, Центральный район,
улица Берёзовая Роща, 4А
2-комнатная квартира, 51.1 м2
4 644 990 ₽
16 /19 эт.
городской округ Воронеж, Воронеж, Советский район,
улица Теплоэнергетиков, 15
2-комнатная квартира, 65.86 м2
9 082 094 ₽
2 /21 эт.
городской округ Воронеж, Воронеж, Левобережный район,
улица Гаршина, 25
2-комнатная квартира, 73.93 м2
10 084 052 ₽
2 /21 эт.
городской округ Воронеж, Воронеж, Левобережный район,
улица Гаршина, 25
2-комнатная квартира, 65.86 м2
9 095 266 ₽
2 /21 эт.
городской округ Воронеж, Воронеж, Левобережный район,
квартал Придача
Заказать звонок
Ваша заявка принята!
